Marra Homes - New Home Builders in Delaware

For New Home Community information click here or call
Rob Young at (302) 984-4545

Model #45
4 or 5 Bedrooms, 3 1/2 Baths
1st Floor Master Bedroom
New Castle County real estate
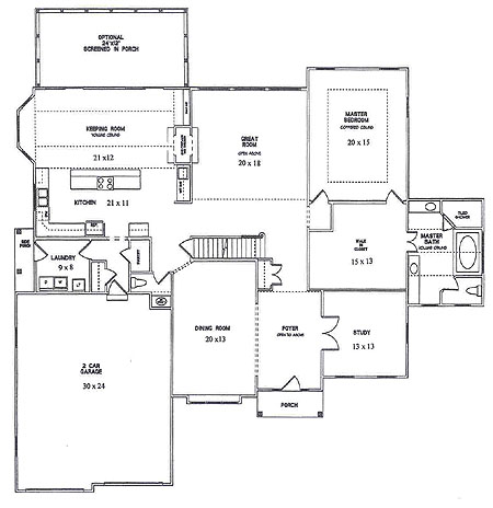
first floor plan Great Room
20'0" x 18'0"
Keeping Room
21'0" x 12'0"
Dining Room
20'0" x 13'0"
Kitchen
21'0" x 11'0"
Study
13'0" x 13'0"
Master Bedroom
20'0" x 15'0"
Walk-In Closet
15'0" x 13'0"
2 Car Garage
30'0" x 24'0"
Additional Spaces
Master Bathroom
Laundry Room Powder Room
Pantry
Optional Screened-In Porch
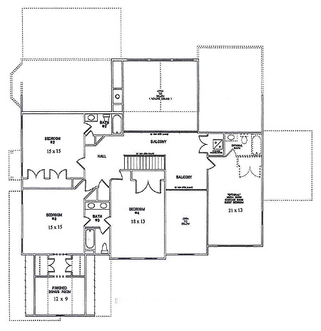
Second floor plan Bedroom #2
15'0" x 15'0"
Bedroom #3
15'0" x 15'0"
Bedroom #4
18'0" x 13'0"
Optional Media Room/Exercise Room
21'0" x 13'0"
Additional Spaces
Balcony
2/3 Bathrooms
Laundry

If you would like more information about new home construction, please click here.

Index of Home Models


All information is deemed reliable but is not guaranteed. Properties that are shown are subject to change, prior sale or withdrawal. Neither listing brokers nor information providers shall be responsible for any typographical errors, misinformation, or misprints, and shall be held totally harmless.

Communities | Company Information | Quick Deliveries
Custom Homes | Philadelphia Region | Contact Us | Home