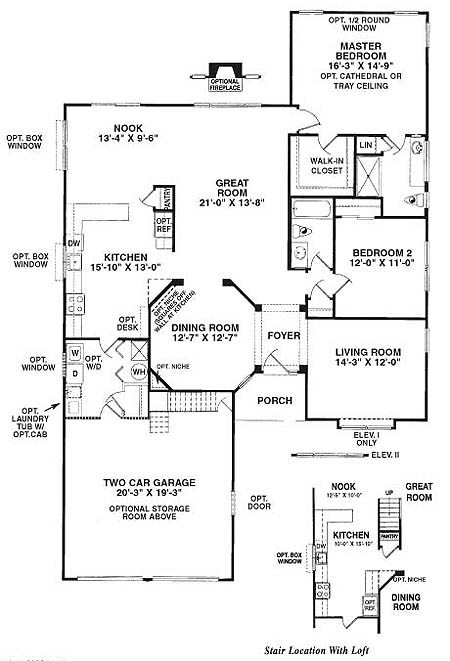
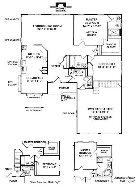
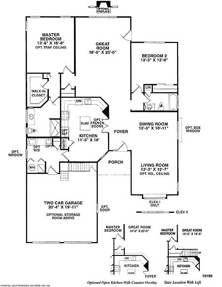
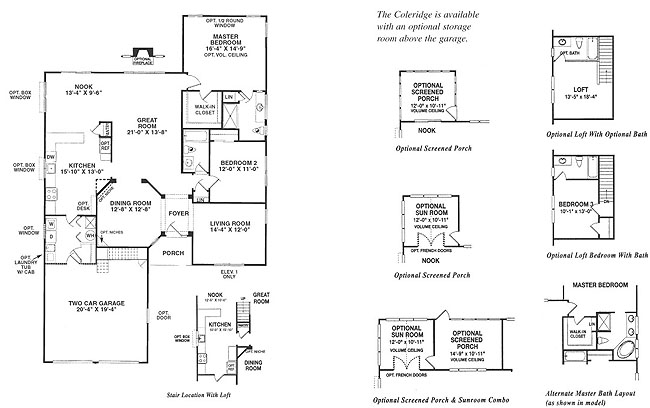
Index of /mckee/springmill