"T" Series Floor Plan Options

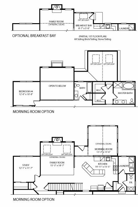
Morning Room and Breakfast Bay Options

Front Porch Options
Elevations ·
Floor Plans
Call Drea Weeks at 610-721-8679 or
click here to contact us about
***Prices and Features are Subject to Change without Notice***
Community Homepage ·
Community Fact Sheet ·
Pricing
Standard Features ·
Community Plot Plan ·
Map and Directions