Valley Farm Estates - "C" Series Floor Plan Options

Breakfast Bay/Great Room/3rd Floor Options

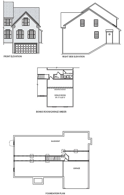
Bonus Room with Garage Under Options

2, 2 1/2 or 3 Car Garage Options
Elevations ·
Floor Plans
Call 610-380-1339 or
click here to contact us about Valley Farm Estates!
***Prices and Features are Subject to Change without Notice***
Community Homepage ·
Community Fact Sheet ·
Pricing
Standard Features ·
Community Plot Plan ·
Map and Directions