Anthony Builders, Inc.
|
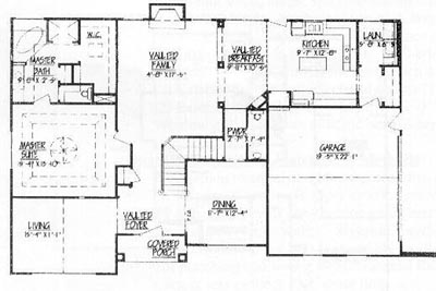
by Frank Betz Associates, Inc. 2,554 square feet of living space |
|
![]() |
![]() |
Return to Frank Betz Designs
Click here to Visit The Anthony Builders Community Guide!
Anthony Builders, Incorporated
434 Clearfield Street
Freemansburg, PA 18017
610-865-9314